公寓 180 m²

1350 € hors charges

KL 5823
  • 4 天前 已更新
  • 1 小时前 最后上线时间
  • 1 8月 上市
Similar Listings
公寓
Botanique / rue Saint-Gilles / Jonfosse
600 € hors charges
公寓
Fragnée / Val Benoît
1150 € hors charges
公寓
Chaudfontaine
700 € hors charges
公寓
Saint-Léonard
700 € hors charges
公寓
Outremeuse
650 € hors charges

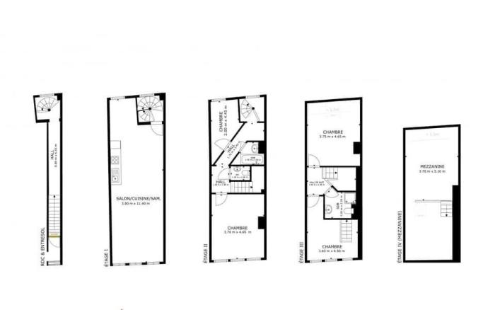
Triplex de 180m2 dans le centre ville - rue du pont tout juste rénové, il est réparti sur 4 niveaux, avec 4 chambres spacieuses, 2 salles de bain et un grand espace de vie.
Parfait pour jeunes travailleurs ou étudiants. Libre immédiatement.
L’appartement est libre immédiatement, la date d’entrée peut se discuter.
Loyer : 1350€ hors charge (pas de charge commune)

  • 4 天前 已更新
  • 1 小时前 最后上线时间
  • 1 8月 上市

租金

冷租 1350 € (338 €/个人)
水电费
peut être une estimation
150 € (38 €/个人)
暖租
peut être une estimation
1500 € (375 €/个人)
Comment Compteurs individuels
押金 3000 €

入住时间

入住时间 2026年8月1日
租房时长 12个月
卧室数量 4

Contact

No commission. No booking fee.

100% free for all students, including Erasmus and international students.

Connection 注册

Arrangement

Furniture Unfurnished
Floor 1
Surface 180 m2
Private rooms 4
Shared rooms 4
Bathroom Private bathroom
Kitchen Shared kitchen
Heating Central heating
Equipment Shower, dishwasher, equipped kitchen

Other infos

Reference KL 5823
Atmosphere Community, calm, warm, studious
Condition New
住房登记 可登记
Access for disabled No
Smoking Non-smoking
Pets No
Musiciens -

Show map

rue du pont, 4000 liege
Similar Listings
公寓
Botanique / rue Saint-Gilles / Jonfosse
600 € hors charges
公寓
Fragnée / Val Benoît
1150 € hors charges
公寓
Chaudfontaine
700 € hors charges
公寓
Saint-Léonard
700 € hors charges
公寓
Outremeuse
650 € hors charges